Beschrijving

OPEN HUIS: Op dinsdag 2 december kunt u deze woning tussen 15:30uur en 16:30uur geheel vrijblijvend en zonder afspraak komen bezichtigen. Stap binnen in deze royale tussenwoning in de geliefde wijk Genderbeemd, Eindhoven! Met drie ruime slaapkamers en de mogelijkheid voor een vierde op de tweede verdieping, vloerverwarming, 12 zonnepanelen en energielabel B woon je hier comfortabel én duurzaam.

Indeling:

Begane grond:

Overdekte entree. Hal met doorlopende tegelvloer voorzien van vloerverwarming, praktische trapkast, meterkast (7 groepen, 3 aardlekschakelaars en glasvezelaansluiting) en de unit van de vloerverwarming. Geheel betegelde toiletruimte met hangend closet en fonteintje. 

Sfeervolle woonkamer met veel lichtinval en open keuken. De keuken is voorzien van een composiet werkblad, 5-pits gaskookplaat, combi-oven/magnetron (AEG), rvs afzuigkap, 1,5 spoelbak met kookkraan, vaatwasser en voldoende kast- en laderuimte. De onderbouw inbouwspotjes zorgen voor een nette afwerking.

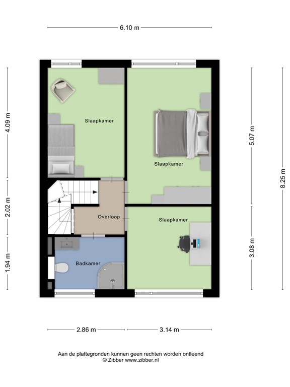
Eerste verdieping:

De overloop is voorzien van doorlopende vloerbedekking en biedt toegang tot drie slaapkamers en de badkamer. De slaapkamers hebben veel daglicht. Twee royale slaapkamers liggen aan de achterzijde, de kleinere slaapkamer aan de voorzijde, samen met de badkamer.

De geheel betegelde badkamer is ingericht met een royale douchecabine met thermostaatkraan, vaste wastafel met meubel, spiegel met verlichting, hangend toilet en designradiator.

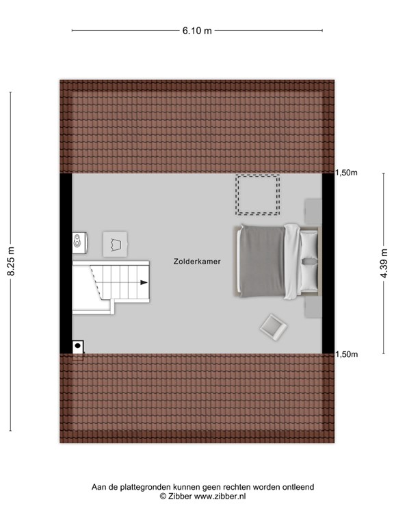
Tweede verdieping:

Via een vaste trap is de ruime zolder bereikbaar. De zolder heeft een groot dakvenster en biedt de mogelijkheid voor een mooie vierde slaapkamer. Tevens bevinden zich hier de aansluitingen voor wasapparatuur, de cv-combiketel (Vaillant, 2010), de mechanische ventilatie-unit en de omvormer van de zonnepanelen.

Tuin/berging: 

De voortuin en achtertuin zijn aangelegd met sierbestrating. De omheinde achtertuin beschikt over een achterom en een royale stenen berging.

Bijzonderheden:
• Royale tussenwoning met vier mooie slaapkamers
• Vaste trap naar de tweede verdieping met mogelijkheid tot een vierde slaapkamer
• Volledig voorzien van hardhouten kozijnen met dubbele beglazing
• Begane grond voorzien van vloerverwarming
• Voorzien van maar liefst 12 zonnepanelen
• Energielabel B aanwezig
• Woonoppervlakte: 128 m²
• Perceeloppervlakte: 171 m²
• Bouwjaar: 1975
• Aanvaarding in overleg
• Gunstig gelegen nabij openbaar vervoer, winkels, scholen en met goede verbindingen naar Eindhoven

Ligging:
Wonen aan de Frankendaal betekent thuiskomen in de rustige en groene wijk Genderbeemd in Eindhoven. Deze geliefde woonwijk in het zuidwesten van de stad staat bekend om haar vriendelijke en gemoedelijke karakter, groene uitstraling en prettige woonomgeving. Hier geniet u van rust, comfort en veel groen, terwijl alle voorzieningen zich op korte afstand bevinden.
Aan de Frankendaal woont u in een rustige, kindvriendelijke straat met volop wandel- en fietsmogelijkheden in de directe omgeving. Voor de dagelijkse boodschappen kunt u terecht bij winkelcentrum Kastelenplein of winkelcentrum Franz Leharplein. Ook vindt u in de buurt diverse scholen, kinderopvang, sportvoorzieningen en parken, zoals het Genderpark en het Klotputtenpark. Alles wat u nodig heeft voor een aangename leefomgeving ligt letterlijk om de hoek.
De wijk is uitstekend bereikbaar. Via de nabijgelegen A2 en A67 bent u snel onderweg richting Tilburg, Den Bosch of Venlo. Ook met het openbaar vervoer is Genderbeemd goed ontsloten, met bushaltes en treinstation Eindhoven Strijp-S op korte afstand. Daarnaast is er in de wijk voldoende parkeergelegenheid en fietst u binnen tien minuten naar zowel het centrum van Eindhoven als de High Tech Campus.

Kenmerken