Beschrijving

Royale hoekwoning aan Frankendaal in Eindhoven

Op een ruim perceel van 355 m² ligt deze ruime hoekwoning met 173 m² woonoppervlakte. De woning beschikt over vier slaapkamers en een praktijkruimte met eigen ingang, ideaal voor werken aan huis. De riante serre verlengt de woonkamer en zorgt voor veel licht en extra leefruimte. Met energielabel B en 12 zonnepanelen woon je hier comfortabel én energiezuinig.

INDELING:

Begane grond:
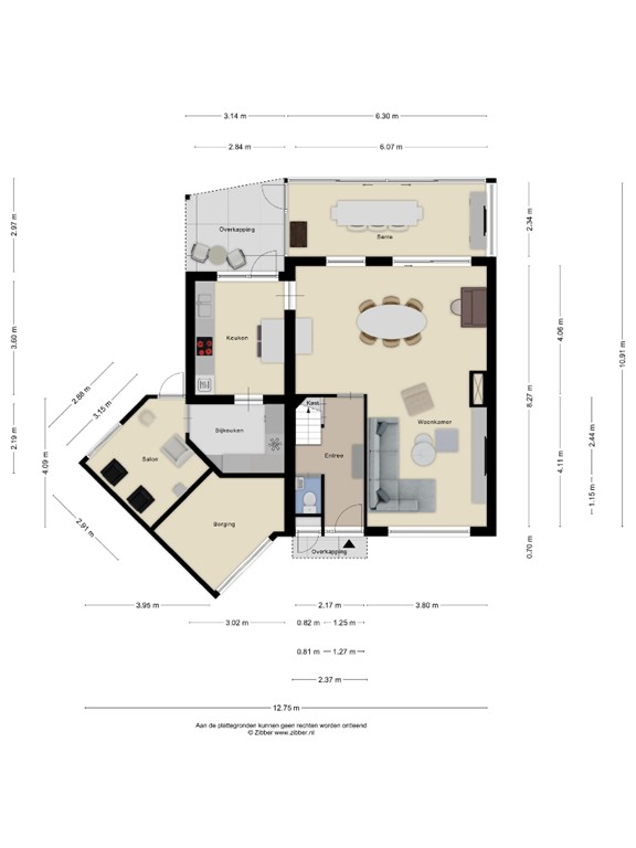
Via de overdekte entree met inbouwverlichting betreedt u deze verrassend ruime hoekwoning. Direct naast de voordeur bevindt zich de meterkast, voorzien van voldoende groepen en aardlekschakelaars. Aan de voorzijde zijn zowel op de boven- als benedenverdieping screens aangebracht, wat zorgt voor privacy en bescherming tegen de zon.

De gehele begane grond is afgewerkt met doorlopende marmeren vloertegels, wat zorgt voor een luxe en uniforme uitstraling. De deels betegelde toiletruimte beschikt over een staand toilet en een fonteintje. Daarnaast is er een praktische trapkast met extra bergruimte.

Een fraaie glazen deur (industriële look) geeft toegang tot de woonkamer. De L-vormige woonkamer kenmerkt zich door een bijzonder prettige lichtinval dankzij de hoekligging en de raampartijen. De marmeren tegelvloer, sfeervolle gashaard en airconditioning (split-unit voor zowel koelen als verwarmen) zorgen voor optimaal comfort in ieder seizoen. Aan de voorzijde geniet u van een leuk uitzicht over de rustige straat. De wanden zijn deels afgewerkt met spachtelputz en deels voorzien van een smaakvol behang.

Aan de achterzijde bevindt zich een convectorput en een schuifpui naar de serre. Deze serre is voorzien van inbouwspotjes en een schuifpui naar de tuin, waardoor binnen en buiten naadloos in elkaar overlopen.

De gesloten keuken is vanuit de woonkamer bereikbaar via eenzelfde stijlvolle glazen deur. Deze ruime leefkeuken (2021) is uitgerust met een granieten werkblad, anderhalve spoelbak, vaatwasser, inductiekookplaat, vlakscherm afzuigkap, koelkast en combi-oven. Een loopdeur biedt directe toegang tot de achtertuin. 

Via een derde glazen deur bereikt u de bijkeuken, die beschikt over een extra keukenblok en volop kastruimte. Aansluitend bevindt zich een multifunctionele praktijkruimte met inbouwspotjes, een onderhoudsvriendelijke vinyl-vloer en een eigen ingang.

Eerste verdieping:
De overloop is voorzien van doorlopende vloerbedekking die over de gehele verdieping is gelegd.
Slaapkamer 1, heerlijk lichte slaapkamer aan de achterzijde gelegen, voorzien van een extra zijraam. Ook de hoofdslaapkamer (met rolluik) bevindt zich aan de achterzijde en biedt een comfortabele en rustige slaapomgeving. Slaapkamer 3 ligt aan de voorzijde en is eveneens van goed formaat.

De volledig betegelde badkamer is modern en compleet uitgevoerd met een royale inloopdouche voorzien van thermostaatkraan, een vaste wastafel in meubel, een hangend toilet en inbouwspotjes.

Tweede verdieping:
Via een vaste trap bereikt u de tweede verdieping. De overloop is voorzien van vloerbedekking en beschikt over vaste kasten onder de knieschotten, wat zorgt voor praktische bergruimte.

De royale vierde slaap-/hobbykamer aan de achterzijde is voorzien van een dakkapel (met rolluik), vinyl-vloer en extra bergruimte achter de knieschotten. Een fijne, lichte ruimte met volop mogelijkheden.

Daarnaast is er een aparte bergruimte met dakvenster, aansluitingen voor wasapparatuur, een uitstortgootsteen en de opstelling van de cv-combiketel (Remeha, 2020).

Tuin:
De voortuin is grotendeels bestraat en biedt volop praktische ruimte. Hier parkeert u eenvoudig op eigen terrein, direct voor de deur. De voormalige garage is omgevormd tot een ruime berging en biedt volop opslagmogelijkheden. Daarnaast beschikt de berging over een praktische vliering, ideaal voor het opbergen van seizoensspullen en extra voorraad. De ruimte is bovendien voorzien van een elektrische garagedeur.

De riante achtertuin is een heerlijke plek om in alle rust te genieten. Dankzij de gunstige ligging en volledige omheining ervaart u hier volop privacy. De tuin is fraai aangelegd met meerdere terrassen, sfeervolle borders met vaste beplanting en een houten tuinhuisje voor extra bergruimte.


Bijzonderheden:

• Royale hoekwoning met bijkeuken, praktijkruimte met eigen ingang en vier mooie slaapkamers
• De riante serre is een verlengstuk van uw woonkamer
• Volledig voorzien van kunststof kozijnen met dubbele beglazing
• Zeer goed afwerkingsniveau
• Er zijn maar liefst 12 zonnepanelen aanwezig
• Energielabel B aanwezig
• Woonoppervlakte: 173 m²
• Perceeloppervlakte van maar liefst 355 m²
• Bouwjaar: 1975, daarna grotendeels gemoderniseerd 
• De riante achtertuin is fraai aangelegd en biedt volop privacy
• Aanvaarding in overleg
• Gunstig gelegen nabij openbaar vervoer, winkels, scholen en met goede verbindingen naar Eindhoven

Ligging:
Wonen aan de Frankendaal betekent thuiskomen in de rustige en groene wijk Genderbeemd in Eindhoven. Deze geliefde woonwijk in het zuidwesten van de stad staat bekend om haar vriendelijke en gemoedelijke karakter, groene uitstraling en prettige woonomgeving. Hier geniet u van rust, comfort en veel groen, terwijl alle voorzieningen zich op korte afstand bevinden. 

Aan de Frankendaal woont u in een rustige, kindvriendelijke straat met volop wandel- en fietsmogelijkheden in de directe omgeving. Voor de dagelijkse boodschappen kunt u terecht bij winkelcentrum Kastelenplein of winkelcentrum Franz Leharplein. Ook vindt u in de buurt diverse scholen, kinderopvang, sportvoorzieningen en parken, zoals het Genderpark en het Klotputtenpark. Alles wat u nodig heeft voor een aangename leefomgeving ligt letterlijk om de hoek.

De wijk is uitstekend bereikbaar. Via de nabijgelegen A2 en A67 bent u snel onderweg richting Tilburg, Den Bosch of Venlo. Ook met het openbaar vervoer is Genderbeemd goed ontsloten, met bushaltes en treinstation Eindhoven Strijp-S op korte afstand. Daarnaast is er in de wijk voldoende parkeergelegenheid en fietst u binnen tien minuten naar zowel het centrum van Eindhoven als de High Tech Campus.

Kenmerken