Beschrijving

Welkom in deze keurig onderhouden en instapklare eengezinswoning, gelegen aan een rustig pleintje in de geliefde wijk Heesterakker. Hier woon je in een groene en kindvriendelijke omgeving, waar rust en comfort samenkomen. De woning biedt alles wat je nodig hebt: drie fijne slaapkamers, een moderne keuken, een royale bijkeuken, een sfeervolle veranda en een multifunctionele berging voorzien van airconditioning. De zonnige tuin op het zuiden, 12 zonnepanelen, kunststof kozijnen met HR++ glas én een volledig vernieuwd dak maken dit huis helemaal klaar voor de toekomst. Je hoeft alleen nog maar je spullen te pakken!

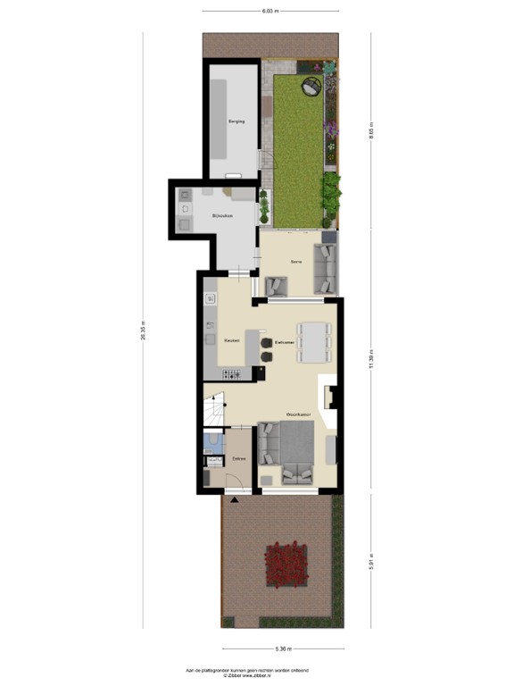
Begane grond
Via de verzorgde voortuin en de overdekte entree kom je binnen in de hal. Hier vind je de meterkast (8 groepen en 2 aardlekschakelaars) en een modern, volledig betegeld toilet met hangend closet en fonteintje. De stijlvolle, donkerhouten laminaatvloer loopt vanuit de hal door in de woonkamer en zorgt direct voor een warme, sfeervolle basis.
De L-vormige woonkamer is heerlijk licht en ruim. Aan de voorzijde kijk je uit op een rustig pleintje door een groot raam, terwijl aan de achterzijde zowel het grote raam als de open verbinding met de keuken zorgen voor een prettige lichtinval. In het hart van de ruimte vind je een gezellige open haard – perfect voor knusse avonden.
De open keuken is luxe uitgevoerd met een granieten werkblad en hoogwaardige inbouwapparatuur. Denk aan een vijfpits gasfornuis van Atag, een Miele vaatwasser, Siemens stoomoven en aparte oven (beide uit 2024), plus een Atag koelkast en aparte vriezer.
Aansluitend bevindt zich de ruime bijkeuken. Deze is voorzien van een fraaie tegelvloer, volop bergruimte, een werkblad met gootsteen (warm en koud water) én aansluitingen voor zowel de wasmachine als de droger.

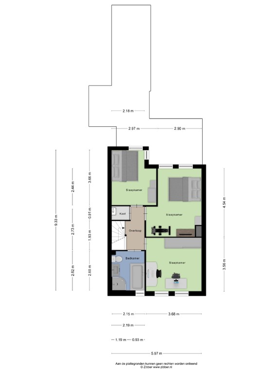
Eerste verdieping
Via de vaste trap bereik je de overloop, voorzien van een nette laminaatvloer. Vanuit hier heb je toegang tot drie slaapkamers, de badkamer en een praktische bergkast met de cv-installatie (2020).
•	Slaapkamer 1 (achterzijde): Een comfortabele, middelgrote kamer met twee draaikiepramen en toegang tot de bergzolder.
•	Slaapkamer 2 (achterzijde): De grootste slaapkamer, voorzien van een lichte laminaatvloer en twee draaikiepramen die zorgen voor veel natuurlijk licht.
•	Slaapkamer 3 (voorzijde): Een ruime kamer met een moderne, lichte pvc-vloer en eveneens twee draaikiepramen.
De badkamer is eigentijds en compleet ingericht met een douchecabine, een extra royaal ligbad en een wastafel met fraai meubel.

Tuin & berging
De zonnige achtertuin, gelegen op het zuiden, is bereikbaar via een achterom en onderhoudsvriendelijk aangelegd met kunstgras, sierbestrating en groene borders. Blikvanger in de tuin is de stijlvolle veranda uit 2023, voorzien van schuifdeuren – een heerlijke plek om tot in de late uurtjes buiten te zitten.
Achterin de tuin bevindt zich een multifunctionele berging, uitgerust met airco, mechanische ventilatie, internetverbinding, verlichting én een keurige laminaatvloer. Daarmee is deze ruimte uitstekend geschikt als thuiskantoor, hobbyruimte of atelier.

Bijzonderheden
•	Voorzien van energielabel A – dus energiezuinig en toekomstbestendig
•	12 zonnepanelen zorgen voor een lage energierekening
•	Dak volledig vernieuwd in 2025
•	Volledig voorzien van kunststof kozijnen met HR++ beglazing
•	Binnen schilderwerk grotendeels vernieuwd in 2025
•	Zonnige tuin op het zuiden met een sfeervolle veranda voor lange zomeravonden
•	Gelegen in een rustige, kindvriendelijke woonwijk met veel groen
•	Op loopafstand van bushaltes, basisscholen en meerdere speeltuinen
•	Winkelcentrum Vaartbroek ligt vlakbij voor al je dagelijkse boodschappen

Kenmerken