Beschrijving

Instapklare, uitgebouwde tussenwoning met 4 slaapkamers, dakkapel en vaste trap naar 2e verdieping, gelegen aan een rustig en kindvriendelijk hofje in Veldhoven (Veldhoven Dorp). Luxe keuken, moderne badkamer en een diepe achtertuin met overkapping en twee bergingen.

INDELING:

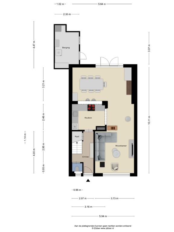
Begane grond:

De ruime ontvangsthal is voorzien van een nette tegelvloer en biedt toegang tot de geheel betegelde toiletruimte met hangend closet. Daarnaast bevindt zich hier een praktische verdiepte trapkast met volop bergruimte en de meterkast. Deze is uitgevoerd met een moderne groepenkast voorzien van aardlekschakelaars. 

Vanuit de hal betreedt u het woongedeelte, waarbij u direct binnenkomt in de stijlvolle keuken (2020).  De keuken is afgewerkt met een nette Linoleumvloer en uitgevoerd in een moderne opstelling met een schiereiland. Het eiland is voorzien van een Bora-kookplaat met geïntegreerde afzuiging, een RVS spoelbak met Quooker, vaatwasser en een combi-oven. Dankzij de aanwezige kastruimte, het royale kunststof werkblad en de gezellige eetbar is dit een heerlijke plek om te koken en te eten.
De eetkamer bevindt zich in de uitbouw aan de achterzijde van de woning. Hier geniet u van vloerverwarming onder de tegelvloer, sfeervolle inbouwspotjes en openslaande tuindeuren naar het terras en de achtertuin. Een perfecte verbinding tussen binnen en buiten.

Aan de voorzijde van de woning ligt de ruime en lichte zitkamer. De grote raampartij zorgt voor een prettige lichtinval. De tegelvloer loopt hier mooi door en het plafond is afgewerkt met spachtelputz. De wanden zijn deels glad gestuct en deels eveneens uitgevoerd in spachtelputz. 

Eerste verdieping:
De eerste verdieping is volledig voorzien van een nette laminaatvloer en biedt toegang tot drie slaapkamers en de badkamer. Aan de achterzijde bevinden zich een kleinere slaapkamer en een ruime tweede slaapkamer. De ouderslaapkamer ligt aan de voorzijde van de woning en biedt een comfortabele en lichte ruimte. 

De volledig betegelde badkamer is modern en compleet uitgevoerd. U beschikt hier over een fijne inloopdouche met thermostaatkraan, een dubbele vaste wastafel met wandmeubel en spiegelkast, een hangend closet en sfeervolle inbouwspotjes. Op de overloop is een airco (split unit) geplaatst, die zowel kan koelen als verwarmen. Hiermee kunt u het klimaat op de gehele verdieping comfortabel reguleren.

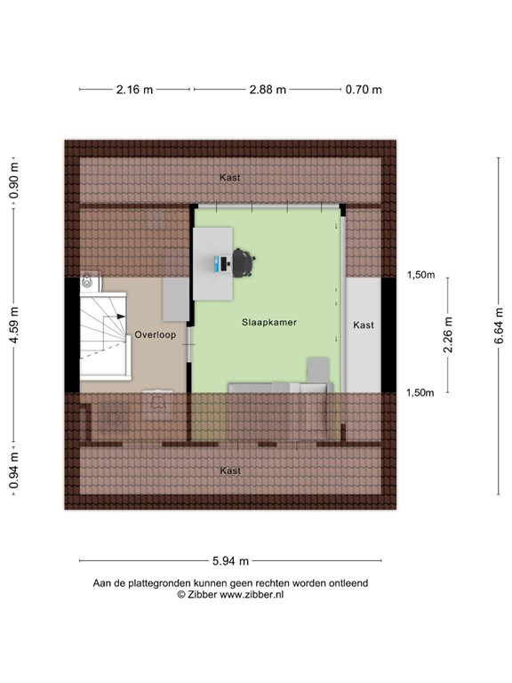
Tweede verdieping:

Op de overloop bevinden zich de opstelplaats van de c.v.-combiketel (Remeha, 2021) en de aansluitingen voor de wasapparatuur. 

Daarnaast treft u hier een volwaardige vierde slaapkamer met een kunststof dakkapel aan de achterzijde, wat zorgt voor extra ruimte en licht. Achter de vaste bergkasten en knieschotten is bovendien handige bergruimte gerealiseerd.
Een ideale verdieping voor een extra slaapkamer, werkkamer of hobbyruimte.

Tuin:
De woning beschikt over een verrassend diepe achtertuin.
Direct aan de woning ligt een ruim terras van sierbestrating, ideaal voor een grote eettafel. Aangrenzend bevindt zich een royale stenen berging. Verder is de tuin ingericht met gazon en sfeervolle leibomen, die zorgen voor een groene en tegelijkertijd beschutte uitstraling. De tuin is volledig omheind, wat zorgt voor optimale privacy en veiligheid.
Achterin de tuin is een tweede berging in de vorm van een tuinhuisje met een extra overdekt terras. Dit biedt een fijne, beschutte plek om ook bij minder weer buiten te zitten. Via de achterom, bereikbaar vanuit de brandgang, is de tuin bovendien praktisch toegankelijk.

Bijzonderheden:
•	Uitgebouwde en instapklare eengezinswoning met 4 slaapkamers, dakkapel achterzijde en vaste trap naar 2e verdieping
•	Luxe keuken en nette badkamer
•	De woning is aan de voorzijde op de begane grond en aan de achterzijde op de eerste verdieping (bij de slaapkamers) voorzien van rolluiken.
•	Grotendeels geïsoleerd en geheel voorzien van dubbele beglazing (deels HR++)
•	Energielabel C aanwezig
•	Bouwjaar: 1963 maar later uitgebouwd en gemoderniseerd
•	Diepe achtertuin met twee bergingen en terrasoverkapping
•	Woonoppervlak: 115m2
•	Gelegen op royaal perceel van 232m2
•	Gelegen op gewilde en rustige woonlocatie aan zeer kindvriendelijk hofje met (speel-)veld, parkeergelegenheid en nabij park
•	Op korte afstand van uitstekende voorzieningen zoals winkels, scholen, uitvalswegen, Eindhoven Airport, ASML en Hightech campus

Ligging:
Veldhoven is een typische stadsrandgemeente met aan de ene kant de grote stad Eindhoven, en aan de andere kant de open landelijke ruimte van de Kempen. Veldhoven wordt daarom ook wel de Poort van de Kempen genoemd. De huidige gemeente Veldhoven ontstond in 1921 door de samenvoeging van de voormalige gemeenten Oerle, Veldhoven Dorp, Meerveldhoven en Zeelst.
In Veldhoven Dorp woont u dicht bij allerlei voorzieningen zoals de gezellige “Kromstraat”, diverse sportaccommodaties, scholen, uitvalswegen en snelwegen (A2, A58, A67 en N2). Tevens is er een goede bereikbaarheid van instellingen en bedrijven als ASML, High Tech Campus en de TU/e.

Kenmerken