Beschrijving

Nette tussenwoning in Zonderwijk met leefkeuken en ruime woonkamer, gelegen op een ruim perceel van 175 m² met verzorgde achtertuin en achterom. Rustig gelegen op een toplocatie nabij alle voorzieningen.

INDELING:

Begane grond:

Via de overdekte entree betreedt u de woning en komt u in de hal, voorzien van een doorlopende tegelvloer. In de hal bevindt zich de meterkast met slimme meters en een eigentijdse groepenkast. De volledig betegelde toiletruimte is uitgerust met een hangend closet en een fonteintje. De ruime leefkeuken is deels betegeld en praktisch ingericht met een keukenopstelling voorzien van diverse inbouwapparatuur, waaronder een gaskookplaat, afzuigkap en combi-magnetronoven. 

Daarnaast is er volop kastruimte aanwezig. Extra bergruimte vindt u in de praktische kelderkast. Aangrenzend bevindt zich de volledig betegelde bijkeuken met aansluitingen voor wasapparatuur en vaste inbouwkasten op hoogte. Vanuit hier heeft u via een loopdeur toegang tot de achtertuin. Vanuit de keuken bereikt u de lichte doorzonwoonkamer. Deze sfeervolle leefruimte kenmerkt zich door een prettige lichtinval en een vrij uitzicht op een speeltuintje. De wanden zijn deels afgewerkt met steenstrips en deels met behang. Aan de voor- en aan de achterzijde zijn elektrisch bedienbaar rolluiken aanwezig.

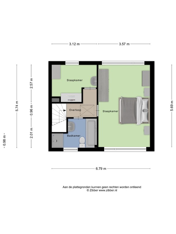
Eerste verdieping:

De overloop is voorzien van vloerbedekking en biedt toegang tot alle vertrekken. De royale, volledig betegelde badkamer beschikt over een ligbad, douche, vaste wastafel en een staand toilet. Zowel het ligbad als de douche zijn uitgerust met thermostaatkranen. Daarnaast is er een rolluik aanwezig.

De verdieping beschikt over een zeer ruime slaapkamer (voorheen twee kamers) aan de voorzijde, voorzien van een elektrisch bedienbaar rolluik; dankzij het nog aanwezige originele kozijn is deze ruimte eenvoudig weer op te splitsen. De tweede slaapkamer is eveneens van goed formaat en beschikt over een vaste wastafel, laminaatvloer en tevens een rolluik. De wanden op deze verdieping zijn deels gestuct en deels behangen.

Tweede verdieping:

Via een vlizotrap op de overloop bereikt u de bergzolder. Deze praktische ruimte is voorzien van een dakvenster en biedt plaats aan de cv-combiketel (Nefit, 2012).

Tuin/berging:

De woning beschikt over een verzorgde voortuin met siergrind en vaste beplanting en een onderhoudsvriendelijke achtertuin met achterom. De achtertuin is grotendeels bestraat en voorzien van borders met vaste beplanting. 

Zowel aan de voor- als achterzijde is een buitenkraan aanwezig.
Daarnaast is er een royale berging met elektra, ideaal voor opslag of hobbyruimte.

Bijzonderheden:
•	Uitgebouwde eengezinswoning met leefkeuken, bijkeuken, ruime woonkamer en complete badkamer.
•	Praktische zolderverdieping met mogelijkheid voor een vaste trap en extra slaapkamer(s)
•	Deels voorzien van kunststof kozijnen en HR beglazing
•	Volledig voorzien van rolluiken
•	Energielabel D
•	Woonoppervlak: 93m2, perceel: 175m2
•	Nette achtertuin met berging en achterom
•	Mogelijkheid tot het bijkopen van een nabijgelegen garagebox 
•	Gelegen op gewilde en rustige woonlocatie nabij groot park
•	Op loopafstand van uitstekende voorzieningen zoals winkels, scholen, uitvalswegen, Eindhoven Airport, ASML en Hightech campus

Ligging:
Zonderwijk is een prettige, groene woonwijk in Veldhoven, gebouwd vanaf het begin van de jaren ’70. De wijk staat bekend om haar complete voorzieningen en centrale ligging. Op loopafstand vindt u winkelcentrum Mira, met twee supermarkten (Albert Heijn en Aldi), een apotheek, slijterij en een herenkapper – ideaal voor de dagelijkse boodschappen. Ook zijn er een basisschool en een wijkcentrum met onder andere een huisartsenpraktijk en een fysiotherapeut. In de nabije omgeving vindt u tal van extra voorzieningen, zoals het gezellige CityCentrum, het winkelgebied De Kromstraat, diverse sportaccommodaties, speelgelegenheden en groene parken. De bereikbaarheid is uitstekend: er is goed openbaar vervoer en u zit zó op de snelweg of in het centrum van Eindhoven. Ook voor werk of studie is de ligging ideaal: grote werkgevers en instellingen als ASML, de High Tech Campus, DAF, het Máxima Medisch Centrum en het Flight Forum zijn snel en eenvoudig te bereiken.

Kenmerken