Beschrijving

Royale 2/1-kapwoning met 3 ruime slaapkamers, dakkapel, garage en overdekt terras – centraal gelegen op loopafstand van het CityCentrum in Veldhoven.

Indeling:

Begane grond:

Via de eigen oprit bereikt u de entree van de woning. In de hal bevinden zich de meterkast en de toegang tot de deels betegelde toiletruimte, voorzien van een staand toilet en een fonteintje. De sfeervolle woonkamer in Z-vorm beschikt over een tegelvloer met vloerverwarming en een praktische trapkast. De afgescheiden keuken in hoekopstelling is uitgerust met een rvs spoelbak, een 4-pits gaskookplaat, afzuigkap, vaatwasser, koelkast en oven. Het overdekte terras is zowel vanuit de woonkamer als vanuit de keuken te bereiken.

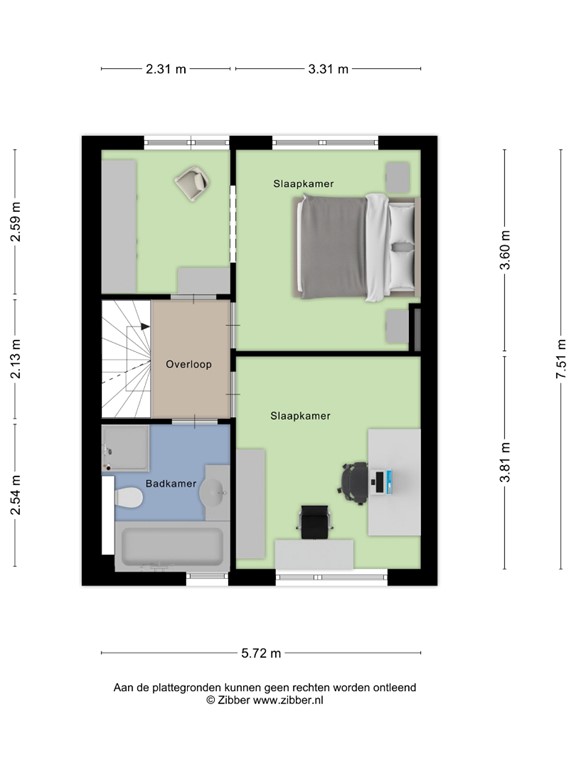
1e verdieping:

Overloop met vaste trap naar de zolderverdieping en toegang tot twee slaapkamers (voorheen drie) en de badkamer. De masterbedroom aan de achterzijde is voorzien van airconditioning en screens. Beide slaapkamers hebben een nette laminaatvloer. De geheel betegelde badkamer beschikt over een ligbad en een douchecabine (beide met thermostaatkraan), een hangend closet, een vaste wastafel in meubel en een designradiator.

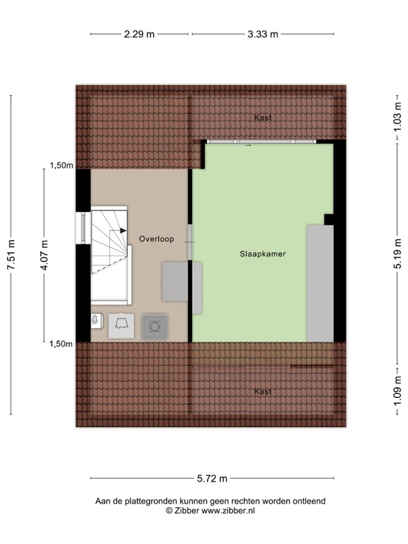
2e verdieping:

Via de vaste trap bereikt u de zolderverdieping. Overloop met vloerbedekking. Hier bevinden zich de aansluitingen voor de wasapparatuur en de opstelling van de HR-combiketel (merk: Nefit, uit 2023). Derde slaapkamer met dakkapel, vinyl vloer en bergruimte achter de knieschotten.

Garage/tuin:

Via de tuin te bereiken garage met daglichttoetreding, kanteldeur en loopdeur. In de garage bevindt zich tevens een eenvoudig keukenblok met kastruimte en spoelbak. Aangelegde voor- en achtertuin met achterom en houten tuinkast.

Bijzonderheden:
•	2/1-kapwoning met drie royale slaapkamers, garage, overdekt terras en eigen oprit
•	Perceeloppervlakte: 228 m² | Woonoppervlakte: 113 m²
•	Tweede verdieping met dakkapel aan de achterzijde
•	Grotendeels geïsoleerd; energielabel C aanwezig
•	Voorzien van airconditioning in de ouderslaapkamer
•	Bouwjaar: 1978
•	Gelegen op een gewilde woonlocatie op loopafstand van het Citycentrum
•	Nabij uitstekende voorzieningen zoals winkels, scholen, uitvalswegen, Eindhoven Airport, ASML en de High Tech Campus

Ligging:
Veldhoven is een typische stadsrandgemeente met aan de ene kant de grote stad Eindhoven, en aan de andere kant de open landelijke ruimte van de Kempen. Veldhoven wordt daarom ook wel de Poort van de Kempen genoemd. De huidige gemeente Veldhoven ontstond in 1921 door de samenvoeging van de voormalige gemeenten Oerle, Veldhoven - Meerveldhoven en Zeelst. Tevens is er een goede bereikbaarheid van instellingen en bedrijven als ASML, de High Tech Campus, het MMC en de TU/e.
De woning is gelegen aan een rustige straat in D’Ekker. In D’Ekker woont u op steenworp afstand van allerlei voorzieningen zoals het City-Centrum, sportaccommodaties, scholen, park uitvalswegen en snelwegen (A2, N2, A58 en A67).

Kijk voor ons volledige woningaanbod op makelaarsvannu.nl

Kenmerken