Beschrijving

Royale tussenwoning met 4 slaapkamers en zolder met dakkapel, op een gewilde, rustige locatie nabij een groot park en alle voorzieningen, werk en uitvalswegen binnen handbereik. Mogelijkheid tot aankoop van een garage op korte afstand.

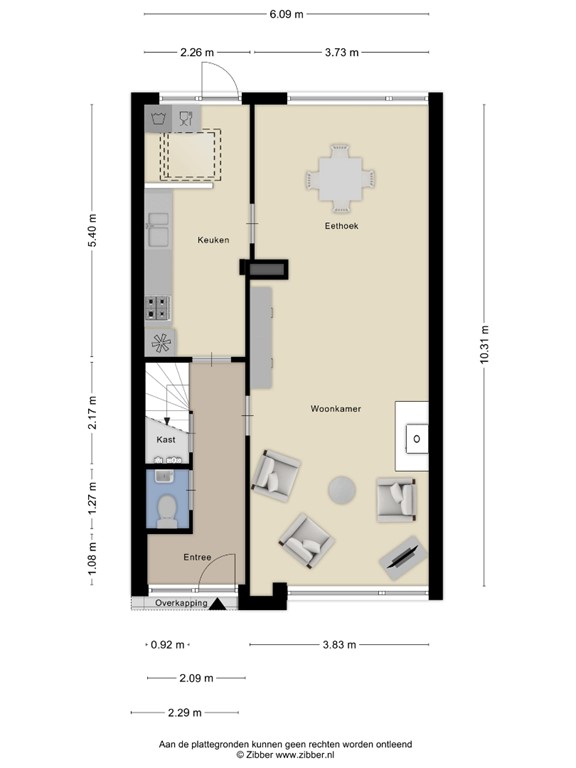
INDELING:

Begane grond:

Via de overdekte entree bereikt u de ruime ontvangsthal, voorzien van een garderobenis en een doorlopende eikenhouten vloer. Vanuit de hal zijn het toilet, de kelderkast, de woonkamer en de keuken toegankelijk.

De deels betegelde toiletruimte is uitgerust met een staand toilet en een fonteintje. De kelderkast biedt praktische bergruimte en herbergt tevens de meterkast (3 groepen).

De sfeervolle woonkamer beschikt over een karakteristieke open haard en is, net als de hal, afgewerkt met een eikenhouten vloer. Dankzij de grote raampartijen geniet de woonkamer van volop natuurlijk daglicht. Er is tevens ruimte voor een comfortabele eethoek.

De keuken is voorzien van een tegelvloer en ingericht in een wandopstelling. Deze is uitgerust met diverse inbouwapparatuur, waaronder een 4-pits gaskookplaat, oven, afzuigkap en een 1,5 spoelbak. De keuken biedt veel praktische opbergmogelijkheden.

Aangrenzend aan de keuken bevindt zich de bijkeuken, die dankzij een lichtkoepel prettig verlicht is. Hier vindt u extra bergruimte en de aansluiting voor de wasapparatuur.

Eerste verdieping:

De overloop is voorzien van vloerbedekking en biedt toegang tot drie slaapkamers en de badkamer.

Aan de voorzijde bevinden zich een royale slaapkamer met vloerbedekking en een praktische inbouwkast en daarnaast een kleinere slaapkamer die zich eveneens aan de voorzijde bevindt.

De deels betegelde badkamer bevindt zich aan de achterzijde van de woning en is uitgerust met een staand toilet (een sanibroyeur), een vaste wastafel, een designradiator en een douche. Vanuit de badkamer is tevens toegang tot het dakterras.

Naast de badkamer ligt de tweede royale slaapkamer, eveneens aan de achterzijde gesitueerd. Deze kamer is voorzien van een praktische inbouwkast en een wastafel.

Tweede verdieping:

Via een vaste trap is de tweede verdieping bereikbaar. De overloop biedt aan zowel de linker- als rechterzijde volop bergruimte en herbergt de opstelling van de cv-ketel (Nefit, 2013).

Vanaf de overloop is er toegang tot de vierde slaapkamer, voorzien van een dakkapel aan de achterzijde en extra bergruimte achter de knieschotten.

Tuin/berging:
De woning beschikt over een voor- en achtertuin met vaste beplanting. De achtertuin beschikt over een stenen berging en heeft een achterom.

Bijzonderheden:
•	Royale tussenwoning met 4 mooie slaapkamers
•	Praktische zolderverdieping met dakkapel
•	Voorzien van hardhouten kozijnen en dubbele beglazing
•	Er is de mogelijkheid om een garagebox bij te kopen, gelegen op een steenworp afstand van de woning.
•	Energielabel C
•	Woonoppervlak: 121 m2, perceel: 162 m2
•	Bouwjaar 1967
•	Gelegen op gewilde en rustige woonlocatie nabij groot park
•	Op korte afstand van uitstekende voorzieningen zoals winkels, scholen, uitvalswegen, Eindhoven Airport, ASML en Hightech campus

Ligging:
Zonderwijk is een prettige, groene woonwijk in Veldhoven, gebouwd vanaf het begin van de jaren ’70. De wijk staat bekend om haar complete voorzieningen en centrale ligging. Op loopafstand vindt u winkelcentrum Mira, met twee supermarkten (Albert Heijn en Aldi), een apotheek, slijterij en een herenkapper – ideaal voor de dagelijkse boodschappen. Ook zijn er een basisschool en een wijkcentrum met onder andere een huisartsenpraktijk en een fysiotherapeut. In de nabije omgeving vindt u tal van extra voorzieningen, zoals het gezellige CityCentrum, het winkelgebied De Kromstraat, diverse sportaccommodaties, speelgelegenheden en groene parken. De bereikbaarheid is uitstekend: er is goed openbaar vervoer en u zit zó op de snelweg of in het centrum van Eindhoven. Ook voor werk of studie is de ligging ideaal: grote werkgevers en instellingen als ASML, de High Tech Campus, DAF, het Máxima Medisch Centrum en het Flight Forum zijn snel en eenvoudig te bereiken.

Kenmerken