Te koop: De Koolhof 14, 5502 RH Veldhoven
€ 639.000,-
Type object | Woonhuis, geschakelde woning |
---|---|
Woonoppervlakte | 155 m² |
Perceeloppervlakte | 292 m² |
---|---|
Status | Nieuw in verkoop |
Beschrijving
Fors uitgebouwd vrijstaand geschakeld woonhuis met garage gelegen op steenworp afstand van het City-Centrum. Deze goed onderhouden woning beschikt over een riante keuken met spoel-/kookeiland, royale woonkamer en fraai aangelegde tuin gelegen op het zonnige zuiden.
Indeling:
Begane grond:
Ruime hal, voorzien van een doorlopende pvc-vloer, trapopgang, toiletruimte en uitgebreide meterkast. Moderne toiletruimte met luxe betegeling, hangend closet, inbouwreservoir en hoekfonteintje. Vernieuwde meterkast. Uitgebouwde woonkamer in L-vorm met pvc-vloer, gashaard (merk Boley), airco, designradiatoren, volop lichtinval door grote raampartijen en openslaande tuindeuren. Open keuken met kook-/spoeleiland, voorzien van granieten werkblad, inductiekookplaat, rvs-afzuigkap, 1½ spoelbak, vaatwasser en diverse kastruimte. De wandopstelling is voorzien van een combimagnetron, oven, koelkast en extra kastruimte.
De bijkeuken is voorzien van een tegelvloer met vloerverwarming, een combiketel (Nefit HR Remeha uit 2020) en een keukenblok met volop kastruimte, rvs-spoelbak en aansluitingen voor de wasapparatuur. De garage, met tegelvloer, is ook inpandig te bereiken en is voorzien van een praktische vaste kastenwand, uitstortgootsteen, verwarming en openslaande deuren.
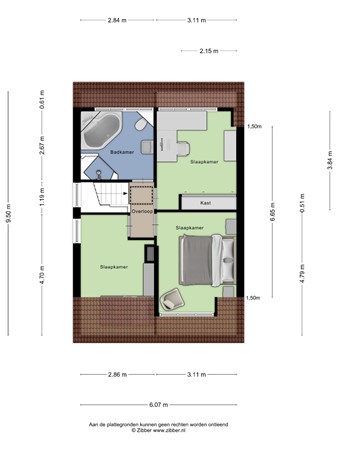
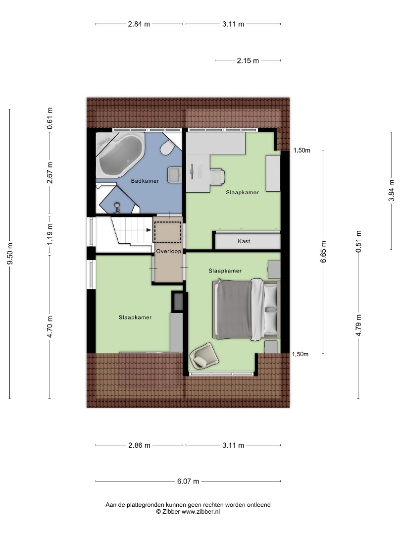
Eerste verdieping:
Via de overloop (met airco) zijn drie slaapkamers, de badkamer en de vlizotrap bereikbaar. Aan de voorzijde zijn twee slaapkamers gelegen, waarvan één is voorzien van een dakkapel. De hoofdslaapkamer aan de achterzijde heeft een dakkapel over de volle breedte en een vaste kastenwand. De geheel betegelde badkamer heeft eveneens een grote dakkapel. Verder is de luxe badkamer voorzien van een royale douchecabine (met thermostaatkraan en zitje), duo-ligbad met ingebouwde thermostaatkraan, hangend closet, vaste wastafel met granieten ombouw, inbouwspotjes en elektrische vloerverwarming.
Tweede verdieping:
Via losse trap te bereiken zolder met mechanische ventilatie-unit en volop bergruimte.
Tuin/berging:
De voortuin is voorzien van een border met diverse vaste beplanting en sierbestrating. De eigen oprit biedt plaats aan meerdere auto’s op eigen terrein. De volop privacy biedende achtertuin is gelegen op het zonnige zuiden en is tevens voorzien van vaste beplanting, een terras met sierbestrating, een elektrisch bedienbare zonneluifel en een houten berging met elektra.
Bijzonderheden:
• Fors uitgebouwd, vrijstaand geschakeld woonhuis met garage en riante keuken met kook-/spoeleiland
• Woning is volledig geïsoleerd en voorzien van dubbele beglazing
• Volop parkeergelegenheid op eigen terrein en extra parkeergelegenheid voor de deur
• Besloten tuin met volop zon, rust en privacy
• Mechanische ventilatie aanwezig
• Bouwjaar ca. 1983 maar de laatste jaren volledig gemoderniseerd
• Nette plafond- en wandafwerking
• Beide verdieping voorzien van airco
• Maar liefst 10 zonnepanelen aanwezig
• Energielabel B
• Nagenoeg volledig voorzien van recent vernieuwde kunststof kozijnen met HR++ beglazing
• Ideale ligging in kindvriendelijke woonomgeving met veel voorzieningen op korte afstand zoals, speeltuin, scholen, sportaccommodaties, openbaar zwembad, openbaar vervoer en het City-Centrum. Daarnaast zijn onder andere Eindhoven en de snelwegen A2, A67 en A50 goed bereikbaar.
Ligging:
Veldhoven is een typische stadsrandgemeente met aan de ene kant de grote stad Eindhoven, en aan de andere kant de open landelijke ruimte van de Kempen. Veldhoven wordt daarom ook wel de Poort van de Kempen genoemd. De huidige gemeente Veldhoven ontstond in 1921 door de samenvoeging van de voormalige gemeenten Oerle, Veldhoven - Meerveldhoven en Zeelst. Tevens is er een goede bereikbaarheid van instellingen en bedrijven als ASML, de High Tech Campus, het MMC en de TU/e.
De woning is gelegen aan een rustige straat in Zeelst. In De Koolhof woont u op steenworp afstand van allerlei voorzieningen zoals het City-Centrum, sportaccommodaties, scholen, park uitvalswegen en snelwegen (A2, N2, A58 en A67).
Kijk voor ons volledige woningaanbod op makelaarsvannu.nl
Indeling:
Begane grond:
Ruime hal, voorzien van een doorlopende pvc-vloer, trapopgang, toiletruimte en uitgebreide meterkast. Moderne toiletruimte met luxe betegeling, hangend closet, inbouwreservoir en hoekfonteintje. Vernieuwde meterkast. Uitgebouwde woonkamer in L-vorm met pvc-vloer, gashaard (merk Boley), airco, designradiatoren, volop lichtinval door grote raampartijen en openslaande tuindeuren. Open keuken met kook-/spoeleiland, voorzien van granieten werkblad, inductiekookplaat, rvs-afzuigkap, 1½ spoelbak, vaatwasser en diverse kastruimte. De wandopstelling is voorzien van een combimagnetron, oven, koelkast en extra kastruimte.
De bijkeuken is voorzien van een tegelvloer met vloerverwarming, een combiketel (Nefit HR Remeha uit 2020) en een keukenblok met volop kastruimte, rvs-spoelbak en aansluitingen voor de wasapparatuur. De garage, met tegelvloer, is ook inpandig te bereiken en is voorzien van een praktische vaste kastenwand, uitstortgootsteen, verwarming en openslaande deuren.
Eerste verdieping:
Via de overloop (met airco) zijn drie slaapkamers, de badkamer en de vlizotrap bereikbaar. Aan de voorzijde zijn twee slaapkamers gelegen, waarvan één is voorzien van een dakkapel. De hoofdslaapkamer aan de achterzijde heeft een dakkapel over de volle breedte en een vaste kastenwand. De geheel betegelde badkamer heeft eveneens een grote dakkapel. Verder is de luxe badkamer voorzien van een royale douchecabine (met thermostaatkraan en zitje), duo-ligbad met ingebouwde thermostaatkraan, hangend closet, vaste wastafel met granieten ombouw, inbouwspotjes en elektrische vloerverwarming.
Tweede verdieping:
Via losse trap te bereiken zolder met mechanische ventilatie-unit en volop bergruimte.
Tuin/berging:
De voortuin is voorzien van een border met diverse vaste beplanting en sierbestrating. De eigen oprit biedt plaats aan meerdere auto’s op eigen terrein. De volop privacy biedende achtertuin is gelegen op het zonnige zuiden en is tevens voorzien van vaste beplanting, een terras met sierbestrating, een elektrisch bedienbare zonneluifel en een houten berging met elektra.
Bijzonderheden:
• Fors uitgebouwd, vrijstaand geschakeld woonhuis met garage en riante keuken met kook-/spoeleiland
• Woning is volledig geïsoleerd en voorzien van dubbele beglazing
• Volop parkeergelegenheid op eigen terrein en extra parkeergelegenheid voor de deur
• Besloten tuin met volop zon, rust en privacy
• Mechanische ventilatie aanwezig
• Bouwjaar ca. 1983 maar de laatste jaren volledig gemoderniseerd
• Nette plafond- en wandafwerking
• Beide verdieping voorzien van airco
• Maar liefst 10 zonnepanelen aanwezig
• Energielabel B
• Nagenoeg volledig voorzien van recent vernieuwde kunststof kozijnen met HR++ beglazing
• Ideale ligging in kindvriendelijke woonomgeving met veel voorzieningen op korte afstand zoals, speeltuin, scholen, sportaccommodaties, openbaar zwembad, openbaar vervoer en het City-Centrum. Daarnaast zijn onder andere Eindhoven en de snelwegen A2, A67 en A50 goed bereikbaar.
Ligging:
Veldhoven is een typische stadsrandgemeente met aan de ene kant de grote stad Eindhoven, en aan de andere kant de open landelijke ruimte van de Kempen. Veldhoven wordt daarom ook wel de Poort van de Kempen genoemd. De huidige gemeente Veldhoven ontstond in 1921 door de samenvoeging van de voormalige gemeenten Oerle, Veldhoven - Meerveldhoven en Zeelst. Tevens is er een goede bereikbaarheid van instellingen en bedrijven als ASML, de High Tech Campus, het MMC en de TU/e.
De woning is gelegen aan een rustige straat in Zeelst. In De Koolhof woont u op steenworp afstand van allerlei voorzieningen zoals het City-Centrum, sportaccommodaties, scholen, park uitvalswegen en snelwegen (A2, N2, A58 en A67).
Kijk voor ons volledige woningaanbod op makelaarsvannu.nl
Kenmerken
Overdracht | |
---|---|
Referentienummer | 11742/8745031 |
Prijs | € 639.000,- |
Status | Nieuw in verkoop |
Aangeboden sinds | Vrijdag 26 september 2025 |
Bouw | |
---|---|
Type object | Woonhuis, geschakelde woning |
Soort bouw | Bestaande bouw |
Bouwjaar | 1983 |
Type dak | Overige |
Isolatievormen | Volledig geïsoleerd |
Oppervlaktes en inhoud | |
---|---|
Breedte | 10 m. |
Lengte | 29 m. |
Perceeloppervlakte | 292 m² |
Woonoppervlakte | 155 m² |
Inhoud | 565 m³ |
Indeling | |
---|---|
Aantal bouwlagen | 3 |
Aantal kamers | 4 (waarvan 3 slaapkamers) |
Aantal badkamers | 1 (en 1 apart toilet) |
Locatie | |
---|---|
Ligging | Dichtbij openbaar vervoer District Nabij school Nabij snelweg |
Uitrusting | |
---|---|
Aantal parkeerplaatsen | 2 |
Tuin aanwezig | Ja |
Heeft een garage | Ja |
Heeft een parkeerplaats | Ja |
Heeft ventilatie | Ja |