Verkocht: Kabouterberg 16, 5508 HE Veldhoven
€ 489.000,- k.k.
| Type object | Woonhuis, tussenwoning, eengezinswoning |
|---|---|
| Woonoppervlakte | 101,3 m² |
| Perceeloppervlakte | 129 m² |
|---|---|
| Status | Verkocht |
Beschrijving
Instapklaar wonen in de Heikant! Moderne instapklare eengezinswoning met luxe keuken, vernieuwde badkamer en zonnige tuin met terrasoverkapping. Perfecte ligging nabij winkels, scholen en uitvalswegen.
INDELING:
Begane grond:
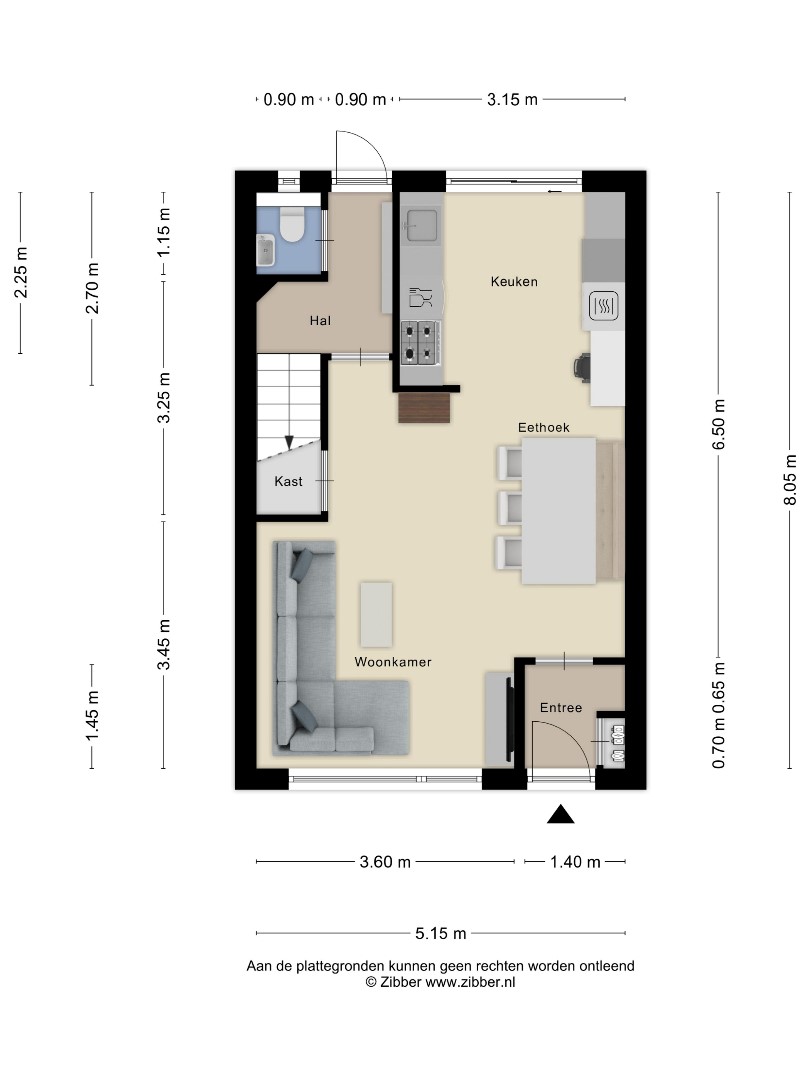
Via de voordeur komt u binnen in de entreehal. In de hal bevindt zich de moderne meterkast, voorzien van 9 groepen en 3 aardlekschakelaars. Vanuit de hal heeft u toegang tot de woonkamer met open keuken.
Woonkamer en keuken:
De sfeervolle woonkamer is afgewerkt met een fraaie eikenhouten vloer en strak stucwerk op de wanden en het plafond. Aan de voorzijde bevindt zich een grote raampartij, wat zorgt voor veel lichtinval in de woning. Dit raam is tevens voorzien van een elektrisch bedienbaar rolluik. De praktische trapkast biedt volop bergruimte.
De open keuken is gelegen aan de achterzijde van de woning. De moderne keuken is uitgerust met een combi-oven, vaatwasser (2024), 4-pits gasfornuis, afzuigkap, koel-vriescombinatie, Quooker en spoelbak. Vanuit de keuken is de achtertuin bereikbaar via de vernieuwde schuifpui (2020).
Hal II
Via een glazen deur in de woonkamer bereikt u de tweede hal. Vanuit deze hal zijn het toilet en de trapopgang naar de eerste verdieping toegankelijk. Het toilet is modern betegeld en voorzien van een inbouwcloset en fontein.
Eerste verdieping:
Via de trap in de hal bereikt u de overloop, die toegang biedt tot drie slaapkamers en de badkamer. De gehele verdieping is afgewerkt met een nette laminaatvloer (2023).
De grote slaapkamer bevindt zich aan de voorzijde van de woning en is afgewerkt met stucwerk wanden en plafond. Het raam is voorzien van een rolluik, wat bijdraagt aan een comfortabele en goede nachtrust. De overige twee slaapkamers zijn eveneens netjes afgewerkt met stucwerk en een doorlopende laminaatvloer.
Aan de achterzijde is in 2023 over de volledige breedte een dakkapel geplaatst, voorzien van elektrisch bedienbare rolluiken. Deze dakkapel zorgt voor aanzienlijk extra ruimte en licht, zowel in de slaapkamers als in de badkamer.
De luxe badkamer (2023) is volledig betegeld en uitgerust met een regendouche met glazen douchewand en ingebouwde kraan. Daarnaast beschikt het ligbad over een ingebouwde thermostaatkraan. Verder is de badkamer voorzien van een fraai wastafelmeubel, designradiator en inbouwspotjes.
Tweede verdieping:
Via een vaste trap is de ruime zolderverdieping bereikbaar, die is afgewerkt met een vinyl vloer en voorzien van een dakraam aan de achterzijde van de woning. De open ruimte is speels in te delen en kan naar wens worden gebruikt als slaapkamer, kantoor of hobbykamer.
Verder bevinden zich hier de aansluitingen voor de wasapparatuur, de ventilatie-unit en de c.v.-combiketel (merk: Remeha, bouwjaar 2011).
Tuin:
Zeer fraai aangelegde achtertuin met achterom, terrasoverkapping met vlonders en elektra, diverse borders met vaste beplanting, siergazon, berging met elektra en een tweede terras met een zonneluifel (2022). De voortuin is eveneens mooi aangelegd en voorzien van sierbestrating en vaste beplanting.
Bijzonderheden:
• Geheel instapklare eengezinswoning met 3 slaapkamers, dakkapel achterzijde en vaste trap naar 2e verdieping
• De complete badkamer is luxe en in 2023 vernieuwd
• Luxe keuken met diverse inbouwapparatuur
• Energielabel C aanwezig
• Volledig geïsoleerd en grotendeels voorzien van dubbele beglazing
• Bouwjaar: 1986 maar recentelijk gemoderniseerd
• Achtertuin met terrasoverkapping en voortuin nieuw aangelegd in 2020
• Woonoppervlak: 101m2
• Gelegen op fraai perceel van 129m2
• Gelegen op gewilde en rustige woonlocatie nabij park
• Op korte afstand van uitstekende voorzieningen zoals winkels, scholen, uitvalswegen, Eindhoven Airport, ASML en Hightech campus
Ligging:
Heikant/De Kelen wordt begrensd door de Meerhovendreef in het noorden, de groenstrook met het sportpark aan de westkant, de Heerbaan in het zuiden en Smelen en de Sint Jorisstraat aan de oostkant. De wijk bestaat uit 3 delen: Heikant-West, Heikant-Oost en De Kelen. Heikant-West werd begin jaren 80 als eerste gebouwd, met woonerven en een compacte inrichting. Heikant-Oost en De Kelen volgden in de jaren 80 en 90, met een meer afwisselende bebouwing en woningen op grotere percelen. De wijk is aantrekkelijk voor gezinnen.
Voor de dagelijkse boodschappen hoef je niet ver op stap, het wijkwinkelcentrum De Heikant en het winkelcentrum in Meerhoven zijn bijna om de hoek! Profiteer van de ligging nabij het centrum van Eindhoven, de diverse uitvalswegen op steenworp afstand en het uiteenlopende voorzieningenaanbod. Tevens is er een gunstige verbinding met bedrijven en instellingen als ASML, Philips, TU Eindhoven, Eindhoven Airport en ’t Maxima Medisch Centrum.
INDELING:
Begane grond:
Via de voordeur komt u binnen in de entreehal. In de hal bevindt zich de moderne meterkast, voorzien van 9 groepen en 3 aardlekschakelaars. Vanuit de hal heeft u toegang tot de woonkamer met open keuken.
Woonkamer en keuken:
De sfeervolle woonkamer is afgewerkt met een fraaie eikenhouten vloer en strak stucwerk op de wanden en het plafond. Aan de voorzijde bevindt zich een grote raampartij, wat zorgt voor veel lichtinval in de woning. Dit raam is tevens voorzien van een elektrisch bedienbaar rolluik. De praktische trapkast biedt volop bergruimte.
De open keuken is gelegen aan de achterzijde van de woning. De moderne keuken is uitgerust met een combi-oven, vaatwasser (2024), 4-pits gasfornuis, afzuigkap, koel-vriescombinatie, Quooker en spoelbak. Vanuit de keuken is de achtertuin bereikbaar via de vernieuwde schuifpui (2020).
Hal II
Via een glazen deur in de woonkamer bereikt u de tweede hal. Vanuit deze hal zijn het toilet en de trapopgang naar de eerste verdieping toegankelijk. Het toilet is modern betegeld en voorzien van een inbouwcloset en fontein.
Eerste verdieping:
Via de trap in de hal bereikt u de overloop, die toegang biedt tot drie slaapkamers en de badkamer. De gehele verdieping is afgewerkt met een nette laminaatvloer (2023).
De grote slaapkamer bevindt zich aan de voorzijde van de woning en is afgewerkt met stucwerk wanden en plafond. Het raam is voorzien van een rolluik, wat bijdraagt aan een comfortabele en goede nachtrust. De overige twee slaapkamers zijn eveneens netjes afgewerkt met stucwerk en een doorlopende laminaatvloer.
Aan de achterzijde is in 2023 over de volledige breedte een dakkapel geplaatst, voorzien van elektrisch bedienbare rolluiken. Deze dakkapel zorgt voor aanzienlijk extra ruimte en licht, zowel in de slaapkamers als in de badkamer.
De luxe badkamer (2023) is volledig betegeld en uitgerust met een regendouche met glazen douchewand en ingebouwde kraan. Daarnaast beschikt het ligbad over een ingebouwde thermostaatkraan. Verder is de badkamer voorzien van een fraai wastafelmeubel, designradiator en inbouwspotjes.
Tweede verdieping:
Via een vaste trap is de ruime zolderverdieping bereikbaar, die is afgewerkt met een vinyl vloer en voorzien van een dakraam aan de achterzijde van de woning. De open ruimte is speels in te delen en kan naar wens worden gebruikt als slaapkamer, kantoor of hobbykamer.
Verder bevinden zich hier de aansluitingen voor de wasapparatuur, de ventilatie-unit en de c.v.-combiketel (merk: Remeha, bouwjaar 2011).
Tuin:
Zeer fraai aangelegde achtertuin met achterom, terrasoverkapping met vlonders en elektra, diverse borders met vaste beplanting, siergazon, berging met elektra en een tweede terras met een zonneluifel (2022). De voortuin is eveneens mooi aangelegd en voorzien van sierbestrating en vaste beplanting.
Bijzonderheden:
• Geheel instapklare eengezinswoning met 3 slaapkamers, dakkapel achterzijde en vaste trap naar 2e verdieping
• De complete badkamer is luxe en in 2023 vernieuwd
• Luxe keuken met diverse inbouwapparatuur
• Energielabel C aanwezig
• Volledig geïsoleerd en grotendeels voorzien van dubbele beglazing
• Bouwjaar: 1986 maar recentelijk gemoderniseerd
• Achtertuin met terrasoverkapping en voortuin nieuw aangelegd in 2020
• Woonoppervlak: 101m2
• Gelegen op fraai perceel van 129m2
• Gelegen op gewilde en rustige woonlocatie nabij park
• Op korte afstand van uitstekende voorzieningen zoals winkels, scholen, uitvalswegen, Eindhoven Airport, ASML en Hightech campus
Ligging:
Heikant/De Kelen wordt begrensd door de Meerhovendreef in het noorden, de groenstrook met het sportpark aan de westkant, de Heerbaan in het zuiden en Smelen en de Sint Jorisstraat aan de oostkant. De wijk bestaat uit 3 delen: Heikant-West, Heikant-Oost en De Kelen. Heikant-West werd begin jaren 80 als eerste gebouwd, met woonerven en een compacte inrichting. Heikant-Oost en De Kelen volgden in de jaren 80 en 90, met een meer afwisselende bebouwing en woningen op grotere percelen. De wijk is aantrekkelijk voor gezinnen.
Voor de dagelijkse boodschappen hoef je niet ver op stap, het wijkwinkelcentrum De Heikant en het winkelcentrum in Meerhoven zijn bijna om de hoek! Profiteer van de ligging nabij het centrum van Eindhoven, de diverse uitvalswegen op steenworp afstand en het uiteenlopende voorzieningenaanbod. Tevens is er een gunstige verbinding met bedrijven en instellingen als ASML, Philips, TU Eindhoven, Eindhoven Airport en ’t Maxima Medisch Centrum.
Kenmerken
| Overdracht | |
|---|---|
| Referentienummer | 11742/8863507 |
| Vraagprijs | € 489.000,- k.k. |
| Status | Verkocht |
| Aangeboden sinds | Donderdag 5 februari 2026 |
| Laatste wijziging | Woensdag 18 maart 2026 |
| Bouw | |
|---|---|
| Type object | Woonhuis, tussenwoning, eengezinswoning |
| Soort bouw | Bestaande bouw |
| Bouwjaar | 1986 |
| Type dak | Overige |
| Isolatievormen | Volledig geïsoleerd |
| Oppervlaktes en inhoud | |
|---|---|
| Perceeloppervlakte | 129 m² |
| Woonoppervlakte | 101,3 m² |
| Inhoud | 359 m³ |
| Indeling | |
|---|---|
| Aantal bouwlagen | 3 |
| Aantal kamers | 5 |
| Locatie | |
|---|---|
| Ligging | Dichtbij openbaar vervoer Nabij school Nabij snelweg |
| Uitrusting | |
|---|---|
| Heeft een achtertuin | Ja |
| Tuin aanwezig | Ja |
| Heeft keuken | Ja |